Custom build.
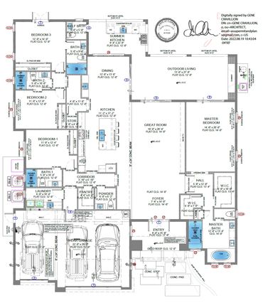
4 Bedroom, 4.5 Bathroom with a 3 car garage
1,722 sq ft under air
564 sq ft lania & outside kitchen
1,029 sq ft pookl & deck



FarFan Contractors, LLC
We use cookies to analyze website traffic and optimize your website experience. By accepting our use of cookies, your data will be aggregated with all other user data.